Thiết kế nhà vườn hiện đại hiện nay đang được nhiều chủ đầu tư lựa chọn làm mẫu thiết kế và thi công công trình cho gia đình. Nhà vườn 1 tầng 4 phòng ngủ, với phối cảnh kiến trúc mái thái hiện đại, tinh tế, đầy mới mẻ, chắc chắn sẽ đốn tim triệu khách hàng.
XaydungTN luôn nỗ lực để làm hài lòng mọi yêu cầu của quý khách hàng. Chúng tôi công khai mẫu thiết kế biệt thự vườn 1 tầng, hy vọng sẽ giúp bạn nảy sinh những ý tưởng thiết kế mới, hoặc có thể sở hữu thêm một mẫu thiết kế mới trong bộ sưu tập của gia đình mình nhé.
Công trình được lên ý tưởng thiết kế cho bác Hùng, có địa chỉ thường trú tại Đức Trọng. Công trình có tổng diện tích thiết kế và thi công là 120m2, kinh phí đầu tư trọn gói cho công trình này là 1.2 tỷ.
Với mong muốn có thể sở hữu mẫu thiết kế biệt thự 1 tầng mái thái, kiến trúc mái màu tươi sáng, cùng với ngoại thất trắng sáng, đem đến hiệu ứng thẩm mĩ cao cho công trình. Đồng thời màu sắc thiết kế ngoại thất ngoài việc thể hiện phối cảnh sang trọng, tinh tế, và quan trọng hơn phải có tuổi thọ sử dụng cao.
Thiết kế nhà cấp 4 chú trọng đến sự kiên cố, bền chắc, còn phải thể hiện sự bề thế, mặt bằng công năng bố trí 4 phòng ngủ hiện đại, hành lang giao thông đi lại thuận tiện.
Phối cảnh thiết kế được hoàn thiện từ thiết kế cổng chính cho đến phối cảnh kiến trúc tổng thể của công trình. Thiết kế cổng với cửa sắt kích thước lớn, mái cổng sử dụng mái thái, đồng màu với mái chính, hệ thống tường bao kiên cố, thiết kế chân tường bằng gạch, kết hợp cùng với khối sắt hình khối hộp vuông, thể hiện những nét đẹp tinh tế và vửng chắc cho không gian.
Mặt tiền chính cũng như mặt tiền phụ của công trình đều được nhấn mạnh và điểm tô với những chi tiết, hoạ tiết và đường nét tinh tế. Nguyên khối cột vuông chạy thẳng từ chân tường đến thân mái, thiết kế khối vuông, được ốp đá ong màu nâu xám, cùng với những đường gờ thụt khoa học, tạo nên những sức hút bề thế cho mẫu nhà vườn cấp 4 mái thái hiện đại.
Kiến trúc mái thái thiết kế khối mái chữ a, thiết kế giật cấp, phi đối xứng cùng với gam màu tươi sáng, màu xám sáng cùng với khoảng không gian sân vườn rộng thoáng, giúp chinh phục mọi ánh nhìn với những cảm quan hiện đại và tích cực.
Thiết kế không gian vườn xanh mát với nhiều loại cây cảnh quen thuộc, khoảng sân trước thiết kế cuốn hút với việc sử dụng đá xanh đen mài cát kết hợp đan xen với đá ghi sáng mài thô. Không gian sân trước tươi mới, hạn chế hiện trạng bị ngấm nước mưa và bị rong rêu ẩm mốc sau quá trình sử dụng.
Tiểu cảnh được thiết kế thông minh và phân bổ khoa học, từng mảng khối và bố cục được vận hành khoa học và tinh tế. Khoảng không gian kiến trúc và ngoại thất có sự ăn nhập với nhau từ chi tiết nhỏ. Chủ đầu tư hoàn toàn đồng ý và hài lòng với phương án phối cảnh thiết kế nhà sơ bộ ngay từ đầu kiến trúc sư đã đưa ra.
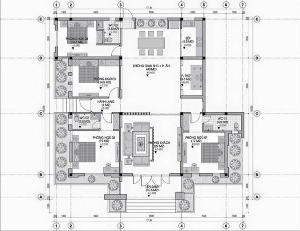
Công năng mẫu nhà vườn 1 tầng 4 phòng ngủ được bố trí tối ưu hoá, thuận tiện cho việc sử dụng và di chuyển trong không gian thiết kế.
Tiền sảnh thiết kế thoáng và rộng, cao với thiết kế bậc tam cấp ốp đá. Phòng khách được bố trí ngay cạnh với cửa chính, đi thẳng vào trong là không gian trung tâm, diện tích rộng và thoáng, bố trí phòng ăn kết hợp với không gian sinh hoạt chung, đồng thời tạo không gian trọng tâm để phân bổ di chuyển đến các không gian khác. Từ không gian sinh hoạt chung đi thẳng vào trong tính từ tay phải là phòng thờ trang nghiêm. Bếp nấu thiết kế trong góc tiếp giáp liên thông với phòng ăn.
Bên cạnh phòng khách là hai phòng ngủ, thiết kế khép kín, đi sâu vào trong từ phòng khách đến phòng ăn bố trí 2 phòng ngủ nhỏ, thiết kế không khép kín và sử dụng nhà vệ sinh chung tính gần với phòng ăn.
Với công năng bố trí khoa học, thiết kế tập trung theo mạch liên kết đa chiều, tối ưu hoá diện tích. Tiến độ thi công hoàn thiện trong thời gian khá ngắn, phối cảnh kiến trúc được hoàn thiện, tổng kinh phí đầu tư hợp lý, bạn có muốn sở hữu mẫu thiết kế hoàn hảo như thế này không?





0 nhận xét:
Đăng nhận xét